华体会体育app官网 老了就回乡下, 造一栋屋子, 从此不问富贵, 只守初心

故乡的屋子老是承载着耐心的乡愁:是夏夜里摇着葵扇乘凉的院落,是午后阳光穿过窗棂洒下的斑驳影迹。然则,跟着屋基地审批的日益严格,许多新建的农村住宅外在自然风格,里面却因为采光不及而显得阴晦冷清,透风不畅更让居室长年带着一点潮气。
其实,简直的高等感,从不在于外墙贴了些许石材,而在于修复怎样与自然对话。今天咱们要共享的这套自建房案例,等于一场对于空间、阳光与风的精彩博弈。
它巧妙地引入了三重庭院与中心天井的想象逻辑,不仅找回了中国传统院落的聚气感,更通过修复

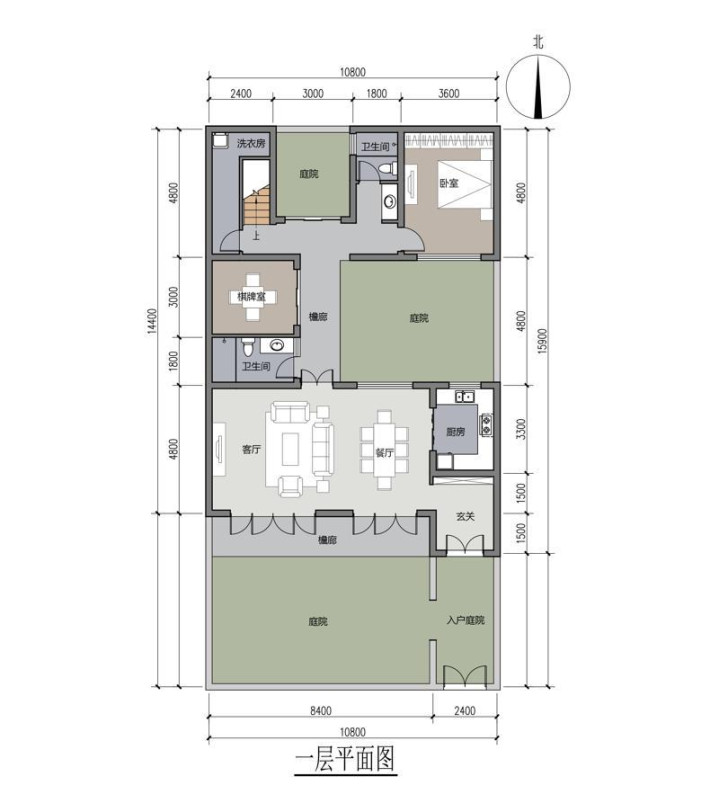
一、 庭院布局:从内到外的“呼吸感”
这套决策最大的亮点在于其三重庭院的想象逻辑,让修复仿佛滋长在自然之中。
前庭进口: 修复南侧设有大面积的入户庭院。这不仅是农忙时节曝晒、堆放耕具的实用空间,更是入户前的庆典感缓冲带。
中枢内院: 修复中心位置镶嵌了一个耿直的庭院(中央天井)。这个想象神来之笔,澈底处罚了深开间房屋中部采光难的问题。
北侧后院: 工致的北院保险了北侧房间(如洗衣房、卧室)的机要性与透风。
这种围合式的布局,在修复学上被称为“内向型住宅”。它既保留了中国传统四合院的聚气感,又安妥了当代农村屋基地的紧凑需求。

二、 功能布局:动静分区,生涯与文娱两不误
想象并未盲目堆砌房间数目,而是本着以东说念主为本的原则,将每一寸空间专揽率发挥到了极致,巧妙罢了了首层酬酢文娱、二层机要休憩的圆善均衡。
【1F:东说念主间炊火气,最抚凡东说念主心】—— 洞开式的家庭酬酢中心
一体化大横厅,开启富余视界:排闼而入,最初映入眼帘的是餐客一体的横厅想象。由于省去了足够的隔墙,视野得以在室内无阻止穿梭。客厅与餐厅通过通透的空间衔尾,不仅让明朗不错自便流转,更通俗了全家东说念主在待客、用餐时的互动疏导,即便家中来宾盈门,也涓滴不显褊狭。
短流线想象,悦享烹调时光:厨房坐落于东南角,紧邻餐厅。这种布局除名了“最短家务动线”,从洗菜切配到热菜上桌,步数极简。同期,厨房带有大面积采光窗,让烹调不再是闷热的膂力活,而是一种享受。
精确捕捉农村酬酢需求:谈判到邻里来去的传统,首层故意预留了一间阳光棋牌室。它与主休息区保捏了合乎的距离,既丰富了全家东说念主的精神文化生涯,华体会体育app又确保了室内动线的互不喧阗。
极尽慈祥的“适老”细节:位于东北角的老东说念主房是本层的想象亮点。谈判到父老腿脚未便,里面配备了孤独的卫浴空间,既保险了机要性,又极猛进度镌汰了夜间起居的安全隐患,让孝心落简直每一个细节里。

【2F:独处与远望,安放灵魂的静谧空间】—— 机要的高品性休息区
多卧树立,生涯品性感拉满:二层共策画了三间卧室,不仅称心了子女返乡、亲一又借宿的需求,更在居住体验凹凸足了功夫。尤其是套房式主卧,孤独衣帽间的树立让生涯整齐整齐,庆典感已而拉满。
惊艳的内院挑空与回廊:这是全屋最灵动、最具“情面味”的想象。二层走说念呈“回”字形环绕着中心的内庭院,通过天井挑空,上基层之间产生了一种妙弗成言的畅达:姆妈在一层客厅喊一声,二层的孩子就能在走廊复兴。这种视野与声息的交互,让大屋子不再冷飕飕。
一方露台,半入云表:东南侧延迟出的超大景不雅露台,是当代农村生涯的“灵魂”。它不仅是自然的曝晒场,更是家东说念主的第二起居室。朝晨在这里拉伸呼吸,傍晚摆上藤椅仰望星空,这才是自建房该有的慵懒与欣喜。

三、 采光与透风:肃除黯澹,让家“自带空调”
许多农村房入户后黑咕隆咚,这套决策通过以下两点圆善侧目:
全标的采光: 收成于内天井的想象,正本处于修复中心最黯澹的餐厅、过说念,当今齐能给与到来自天井的直射光。全屋险些莫得采光死角。
烟囱效应透风: 庭院与天井变成了自然的风说念。热空气从天井上方排出,崭新空气从四周窗户引入。这种自然对流在炎燥热日能权臣镌汰室内温度,让屋子“会呼吸”。

修复不应仅仅钢筋混凝土的堆砌,它更像是一个承载心扉的容器。这套自建房决策通过内天井与三重庭院的精妙布局,它冲破了传统民房黯澹、闷热的流毒,让每一缕曙光齐能照进餐厅,让每一阵清风齐能穿堂而过。
在这么的屋子里华体会体育app官网,父老能在首层阳光房里安享晚年,孩子能在回廊转角处满足嬉戏,而可贵了一年的你,能在二层的星空露台上卸下周身困顿。所谓的理念念中的家,不详就是这么:既能看得回春花秋月,也能装得下布帛菽粟,更能让家东说念主的心牢牢连在一说念。
开云kaiyun(中国)体育官网上一篇:华体会体育app 任正非这么的东谈主,只可当一霸手!
下一篇:没有了


备案号: